Boswoningen
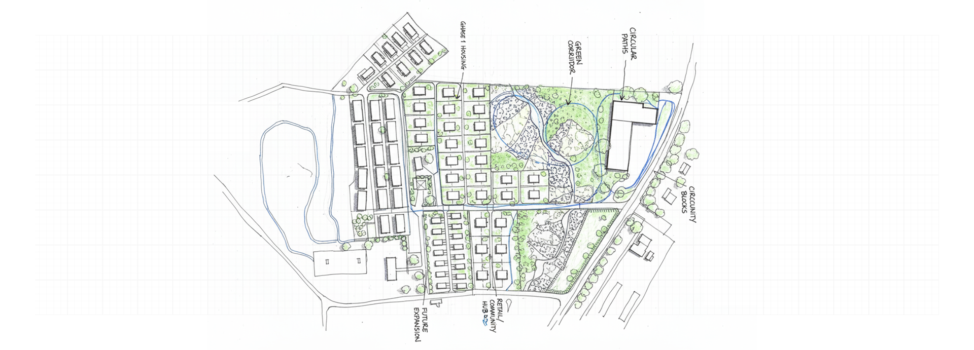
The project envisions an affordable residential complex embedded within a 28,000 m² forest site, situated in an investment area of 17.2 hectares. The masterplan introduces 33 duplex units designed with sustainable, cost-efficient materials, providing a balanced solution between affordability and long-term durability. With an average household size of 3 to 4 residents, the development has the capacity to accommodate over 100 people in a community-oriented setting that preserves the natural landscape.


Circular economy principles guide both material selection and construction methods, ensuring that resources are reused, energy demand is minimized, and environmental impact is reduced throughout the life cycle of the buildings. The emphasis on affordability is not only financial but also social, offering accessible living solutions for households that are increasingly priced out of the Dutch housing market.





Learning
As project design lead, this project provides valuable insights into integrating affordability, sustainability, and community living within a sensitive natural environment. By situating the residential complex in a forest setting, the design demonstrates how development can respect and preserve ecological landscapes while addressing housing needs. The use of sustainable, cost-efficient materials highlights practical approaches to balancing upfront construction costs with long-term durability and maintenance.
